
2026
Casa Santa Rosa
Arquitectos
Javier Bracamonte, Gonzalo Yerba.
Colaboradores
Franco Stinga, Maite Alvarenga.
Constructor
Favio Teti.
Ingeniero
Juan Pablo Pereyra.
Ubicación
Vicente Lopez, Provincia de Buenos Aires, Argentina.
Fotografía
Fernando Schapochnik.
Paisajismo
Maria Mullieri.

Casa Santa Rosa
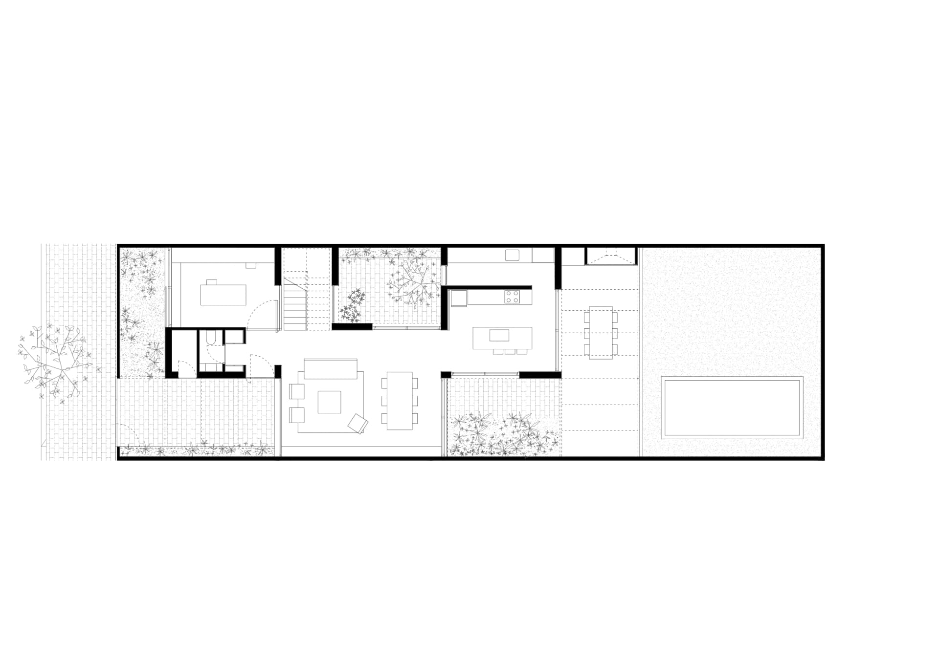
2026La Casa Santa Rosa se implanta en un barrio de casas bajas caracterizado por sus retiros sobre la línea municipal. El proyecto se estructura a partir de tres patios que se intercalan longitudinalmente, definiendo la experiencia del habitar. El patio de acceso propone una procesión entre el exterior y el interior; se encuentra protegido por una pérgola de vegetación perenne que aporta floración todo el año y funciona, a su vez, como espacio guardacoche. En continuidad, el patio central y el del contrafrente fragmentan la planta, sumando perímetro y garantizando ventilación e iluminación en el centro de la vivienda. Esta fragmentación permite distribuir de manera orgánica los programas específicos en cada sector, tanto en la planta baja como en la planta alta. La fachada se ordena en tres bandas horizontales, donde la franja intermedia de mampostería oculta el dintel de las ventanas de planta baja y el antepecho de la planta alta. Finalmente, un sistema de postigones corredizos resuelve la seguridad, mientras tamiza el ingreso de luz y brinda privacidad a los ambientes.





















Arquitectos
Javier Bracamonte, Gonzalo Yerba.
Colaboradores
Franco Stinga, Maite Alvarenga.
Constructor
Favio Teti.
Ingeniero
Juan Pablo Pereyra.
Ubicación
Vicente Lopez, Provincia de Buenos Aires, Argentina.
Fotografía
Fernando Schapochnik.
Paisajismo
Maria Mullieri.
