
2026
Casa Rio
Arquitectos
Javier Bracamonte, Gonzalo Yerba.
Colaboradores
Maite Alvarenga.
Ingeniero
Juan Pablo Pereira.
Ubicación
Campo Chico, Pilar, Provincia de Buenos Aires, Argentina.

Casa Rio
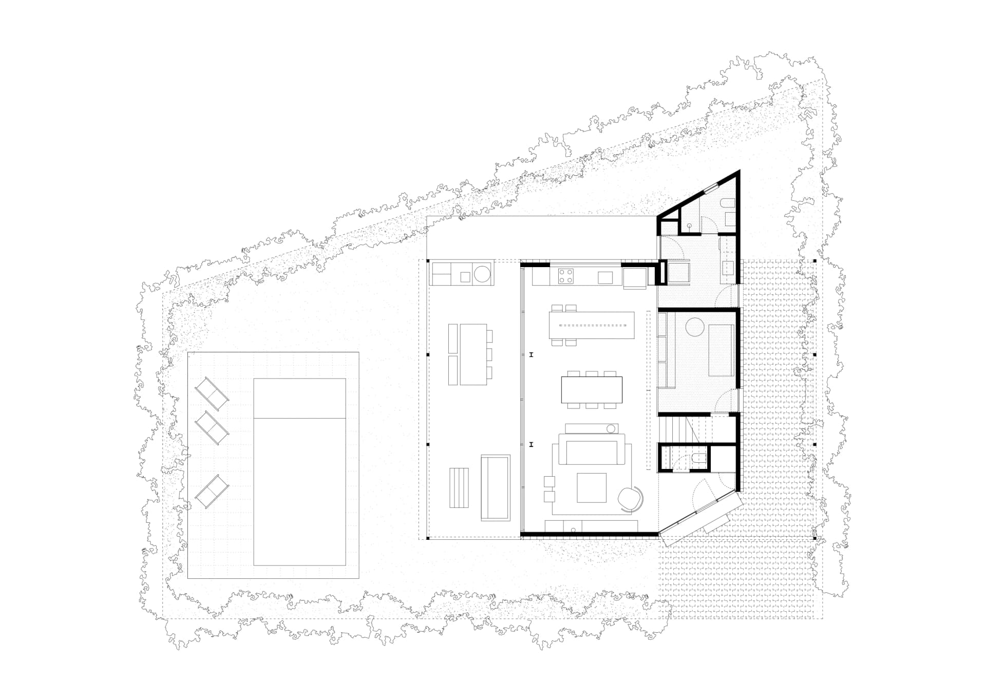
2026El proyecto se implanta en un terreno de geometría irregular, donde la preexistencia de una piscina se convirtió en el único rastro conservado tras la demolición de una vivienda preexistente. Sobre este escenario liberado, la casa se acomoda buscando la mayor amplitud del solar, reconociendo en su lateral la verdadera fachada principal y volcando su interior hacia el jardín y la orientación norte. Esta decisión de implantación no solo optimiza el asoleamiento, sino que establece un diálogo directo entre la arquitectura y el espacio abierto del terreno. La organización del programa se estructura mediante una lógica de bandas paralelas que atraviesan la planta con rigurosidad. En la planta baja, un primer espesor técnico absorbe los retiros obligatorios, transformándolos en una galería de servicios y acceso vehicular. Adyacente a esta, una franja compacta de apoyo agrupa el toilette, la escalera y las áreas de servicio, liberando el resto de la superficie para el área social. Así, el estar, el comedor y la cocina se integran en un espacio continuo que se expande hacia una segunda galería lateral, consolidando el núcleo de actividad social de la vivienda y su transición hacia el exterior. Esta misma organización se replica en la planta alta, donde la banda de servicios sirve de respaldo a los dormitorios, orientando sus vistas hacia el paisaje lateral. Todas estas decisiones programáticas encuentran su resolución formal definitiva en el corte, donde una única cubierta a dos aguas actúa como el elemento de síntesis. La manipulación de sus pendientes responde a una precisión funcional: se aprovecha la pendiente baja para que, en conjunto con un quiebre geométrico en la planta, se caracterice el acceso mediante un espacio semicubierto, mientras que la mayor altura de la cubierta permite alojar los servicios del nivel superior. Este recurso del techo, simple pero ajustado con precisión, configura la fachada hacia la calle con una silueta abstracta pero sugestiva.









Arquitectos
Javier Bracamonte, Gonzalo Yerba.
Colaboradores
Maite Alvarenga.
Ingeniero
Juan Pablo Pereira.
Ubicación
Campo Chico, Pilar, Provincia de Buenos Aires, Argentina.
