
2025
Casa Riberas
Arquitectos
Javier Bracamonte, Gonzalo Yerba.
Colaboradores
Maite Alvarenga, Franco Stinga.
Constructor
Favio Teti.
Ubicación
Puertos, Escobar, Provincia de Buenos Aires, Argentina.
Fotografía
Tiziano Duarte.

Casa Riberas
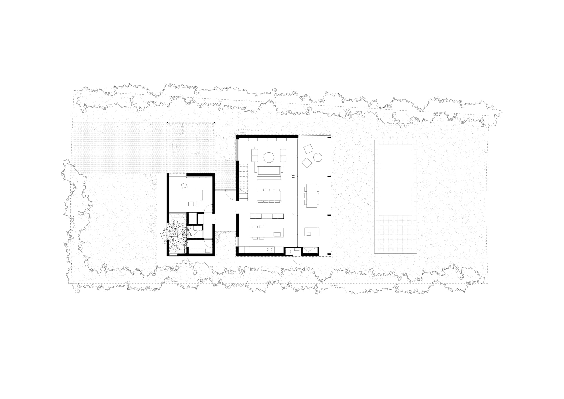
2025El proyecto surge del encargo de una vivienda unifamiliar en las afueras de Buenos Aires, planteando el desafío de integrar un espacio de trabajo específico con el programa tradicional de una casa familiar. La estrategia consistió en organizar el proyecto en dos cuerpos independientes, articulados por un conector que funciona como acceso principal. Este elemento de unión permite el cruce entre el ámbito laboral y el doméstico, otorgando flexibilidad de uso y privacidad a ambos sectores según la necesidad. En cuanto a su materialidad, la vivienda se resuelve mediante losas de hormigón visto y muros de ladrillo visto. Un detalle perimetral en el hormigón permite alivianar visualmente el espesor de la estructura; este recurso se hace evidente sobre las aberturas y en las galerías, donde el lenguaje estructural dialoga con la esbeltez de las columnas, integrándose a la volumetría general del conjunto.









Arquitectos
Javier Bracamonte, Gonzalo Yerba.
Colaboradores
Maite Alvarenga, Franco Stinga.
Constructor
Favio Teti.
Ubicación
Puertos, Escobar, Provincia de Buenos Aires, Argentina.
Fotografía
Tiziano Duarte.
