
2025
Casa Quesada
Arquitectos
Javier Bracamonte, Gonzalo Yerba.
Arquitectos asociados
Franco Stinga.
Colaboradores
Tiziano Duarte.
Ubicación
Nunez, Ciudad Autónoma de Buenos Aires, Argentina.
Imágenes
Pedro Van Vyld.

Casa Quesada
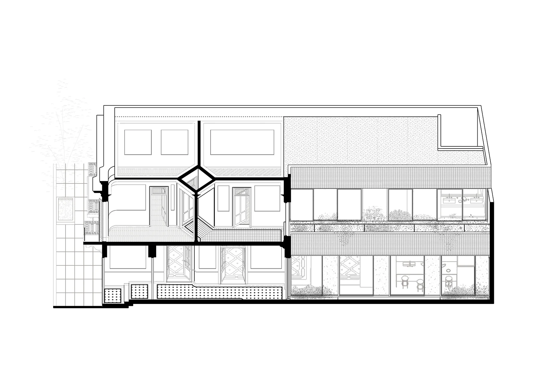
2025El proyecto tiene como objetivo la refuncionalización y actualización programática de una vivienda de la década del 30 en el barrio de Núñez. La preexistencia presenta dos áreas con lógicas constructivas distintas: el frente con estilo italianizante, definido por sus recintos con solados de madera, molduras y aberturas originales; y el contrafrente vinculado a una circulación independiente, donde se agrupaban los programas de servicio que ventilan a un patio lateral de apenas 2,5 metros de ancho. La estrategia de intervención respeta esta configuración espacial. En la zona de frente, se opta por preservar y acondicionar los ambientes, manteniendo su estilo original con una mínima acción. Por el contrario, la sección posterior se redefine para integrar nuevos usos, alojando la cocina y el lavadero en planta baja y el dormitorio principal en el nivel superior. La nueva fachada del contrafrente opera sobre los muros existentes mediante un ritmo de vanos que busca una integración fluida con el patio. En la planta alta, se unifican los desniveles de las losas preexistentes tras un plano continuo de antepecho y dintel, resolviendo un balcón corrido que expande el interior hacia el exterior. Esta nueva geometría escalonada permite descomprimir la sección del patio, optimizando las condiciones de luz y aire. Desde lo material, la nueva envolvente se reviste de azulejos brillantes, una decisión que busca, a través del reflejo, suavizar la transición entre lo nuevo y lo existente mientras multiplica la luminosidad en el sector más angosto del lote. Las carpinterías de planta baja se deslizan por delante de los muros para reducir la presencia de la perfilería, reforzando una estética etérea. En su conjunto, estas operaciones logran una síntesis donde la intervención contemporánea suaviza la preexistencia a través de la luz y el juego de reflejos.





Arquitectos
Javier Bracamonte, Gonzalo Yerba.
Arquitectos asociados
Franco Stinga.
Colaboradores
Tiziano Duarte.
Ubicación
Nunez, Ciudad Autónoma de Buenos Aires, Argentina.
Imágenes
Pedro Van Vyld.
