
2025
Casa Condarco
Arquitectos
Javier Bracamonte, Gonzalo Yerba.
Colaboradores
Tiziano Duarte.
Ingeniero
Pablo Sergio Lulkin.
Ubicación
Villa Pueyrredón, Ciudad Autónoma de Buenos Aires, Argentina.
Imágenes
Pedro Van Vyld.

Casa Condarco
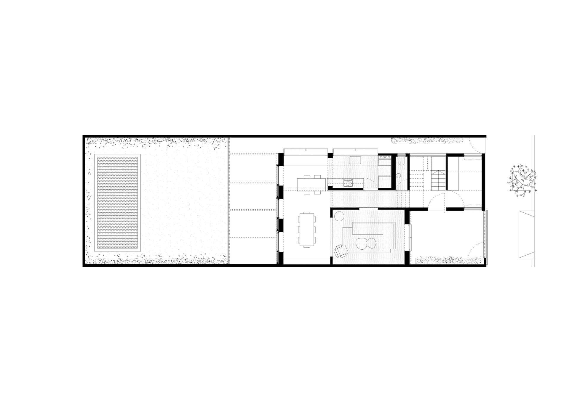
2025El proyecto consiste en la refuncionalización y ampliación de una vivienda de tipología "cajón" de la década del 30, situada en el barrio de Villa Pueyrredón. El eje central de la intervención fue la optimización de la estructura preexistente, buscando el máximo aprovechamiento espacial bajo una premisa de eficiencia presupuestaria. Bajo esta lógica, en la planta baja se reorganizaron los programas de uso social, ejecutando hacia el contrafrente tres aperturas de vanos proyectadas específicamente para no sobreexigir los muros portantes originales. Para potenciar la relación con el exterior, se optó por instalar las carpinterías de aluminio sobre el filo externo de la fachada, minimizando la presencia de los marcos desde el interior y priorizando la continuidad visual con el jardín. La resolución de la circulación vertical resultó clave para la organización del programa; se aprovechó el retiro del frente en la planta baja para posicionar una escalera de dos tramos, lo que permitió liberar la planta alta y acomodar tres dormitorios y servicios de forma compacta. Esta disposición estratégica permitió conservar el perímetro semilibre de la propiedad, optimizando la iluminación natural y la ventilación en ambos niveles. La ampliación se materializó mediante una estructura metálica liviana. Una única cubierta inclinada unifica formalmente la planta alta, el núcleo de la escalera y el estudio de planta baja, otorgando una identidad clara a la fachada del frente. Hacia el contrafrente, de esta estructura principal se sujeta una cubierta de chapa traslúcida que define la escala y da sombra a la galería. Finalmente, el uso del color blanco integra las distintas etapas constructivas, resolviendo la obra como un volumen sólido, coherente y contemporáneo.








Arquitectos
Javier Bracamonte, Gonzalo Yerba.
Colaboradores
Tiziano Duarte.
Ingeniero
Pablo Sergio Lulkin.
Ubicación
Villa Pueyrredón, Ciudad Autónoma de Buenos Aires, Argentina.
Imágenes
Pedro Van Vyld.
